Ì¼ËØÐÐÒµ
²£Á§ÐÐÒµ
»¯¹¤ÐÐÒµ
½¹»¯ÐÐÒµ
Σ·ÏÐÐÒµ
¸ÖÌúÐÐÒµ
ºã¾ÃÒÔÀ´£¬ÎÒ¹úÌ¼ËØ¡¢²£Á§¡¢½¹»¯¡¢»¯¹¤¡¢¸ÖÌú¡¢Ë®Äà¡¢½¨²Ä¡¢·ÄÖ¯µÈÐÐÒµÓàÄÜûÓлñµÃ³ä·ÖÀûÓã¬Èç¸ÖÌúÆóÒµµÄ¸ßÂ¯ÃºÆø¡¢×ªÂ¯Æø£¬ÃºÌ¿ÆóÒµµÄ½¹Â¯ÃºÆø£¬ÖÖÖÖҤ¯µÄ¸ßÎÂÑÌÆø£¬»¯¹¤ÆóÒµµÄ»¯Ñ§·´Ó¦ÈÈÄÜ£¬Ë®ÄàÆóҵˮÄàÒ¤µÄµÍÎÂÓàÈÈ´ó×ڷſգ¬Ôì³ÉÄÜÔ´µÄÑÏÖØÀË·Ñ£¬Í¬Ê±Ò²ÎÛȾÁËÇé¿ö¡£
²»ÐàÇéÔµ¹ÙÍø¿ª·¢µÄÖÖÖÖÓàÈȹøÂ¯£¬¿ÉÒÔÔÚÉÏÊöÁìÓò´óÏÔÉíÊÖ£¬ÀûÓÃÉú²úÀú³ÌÖеŤÒÕÓàÈȱ¬·¢¸ßθßѹÕôÆû·¢µç£¬´Ó¶ø½µµÍµçºÄ£¬¼õÉÙÉú²ú±¾Ç®£¬Îª¿Í»§ÆóÒµ´´Á¢Á¼ºÃµÄ¾¼ÃÐ§ÒæºÍÉç»áÐ§Òæ¡£
2021Äê¹ú¼Ò·¢¸Äίӡ·¢¡¶¡°Ê®ËÄÎ塱ѻ·¾¼ÃÉú³¤¼Æ»®¡·£¬Ã÷È·½«¡°Íƽø¹¤ÒµÓàѹÓàÈÈ¡¢·ÏË®·ÏÆø·ÏÒºµÄ×ÊÔ´»¯ÀûÓã¬ÊµÏÖÂÌÉ«µÍ̼ѻ·Éú³¤£¬»ý¼«Íƹ㼯Öй©Æø¹©ÈÈ¡±×÷ÎªÖØµãÈÎÎñ¡£
ÓàÈȹøÂ¯×ÜÌåÀ´½²Ö»ÓС°¹ø¡±Ã»ÓС°Â¯¡±¡£ËüÊÇÀûÓÃÓàÈȽéÖÊ£¨ÖÖÖÖ¹¤ÒµÀú³ÌÖÐµÄ·ÏÆø¡¢·ÏÎï»ò·ÏÒº£©Öк¬ÓеÄÏÔÈÈ»ò£¨ºÍ£©¿ÉȼÎïÖÊȼÉպ󱬷¢µÄÈÈÁ¿£¨ÐëҪʱ¿É¼Ó²¹È¼£©£¬ÓëÑ̵À£¨°²ÅÅÔÚÑ̵ÀÖУ©µÄÊÜÈÈÃæ½øÐÐÈȽ»»»£¬±¬·¢ÕôÆû»òÈÈË®µÄ¹øÂ¯£¬Æä½á¹¹ÀàËÆÓÚË®¹Üʽ»ò¹ø¿Çʽ¹øÂ¯¡£
| ÓàÈÈ»ØÊÕ¹øÂ¯ | Ò»°ãûÓÐȼÁÏȼÉÕ×°Ö㨳ý·ÇÓв¹È¼ÐèÇó£© Ò»Ð©Î¶ȱȽϸߵÄÑÌÆøµÈ½éÖÊÀ´¼ÓÈÈË® ÈÈÔ´ÊÇÀûÓù¤ÒµÈ¼ÉÕµÄÓàÈÈ·ÏÈÈ (¹¤ÒµÂ¯µÄȼÉÕÎÂ¶È½Ï¸ß·ÏÆøÓàÈÈÔÙ´ÎÀûÓÃ) | ½á¹¹¼òµ¥ ĿǰӦÓý϶àµÄÊÇ Ö±Í¨Ê½ÓàÈȹøÂ¯ | ѹÁ¦¡¢Ë®Î»¡¢Î¶ȵÈÈÝÒ׿ØÖÆ ÒòΪȼÉÕ¿ÉÒÔ¿ØÖÆ | Ò»°ãÊǹ¤ÒµÂ¯µÄÅäÌ×É豸 ÒªÊÊÓ¦ÓÚÖ÷¹¤ÒÕµÄÐèÇó ²»¿ÉÓ°ÏìÖ÷¹¤ÒÕµÄÔËÐÐ |
|---|---|---|---|---|
| ³£Ñ¹¹¤Òµ¹øÂ¯ | ÐèҪȼÉÕ×°Öà ºÃ±ÈȼÉÕ»ú£¬»òÕ߯ÅÅµÈ ÈÈÔ´ÊÇÀûÓýéÖÊȼÉÕ( ú¡¢ÓÍ¡¢È¼ÆøµÈ ) »ñµÃ | ¹¤Òµ¹øÂ¯ÖÖÀà¶à ½á¹¹ÅÓ´ó ¸¨ÖúÉ豸½Ï¶à | ÔËÐвÎÊý²»Ò׿ØÖÆµÄ ÔÚÔËÐÐÖÐÓàÈȹøÂ¯µÄÈÈÔ´ÊÇËæ ¹¤ÒµÂ¯µÄȼÉÕÖÜÆÚ¶ø±ä¸ï | Ö÷ÒªÓÃÓÚ¹©ÆøºÍÅäÌׯûÂÖ»ú·¢µçÓÃµÈ |
ȼÓÍ¡¢È¼Æø¡¢È¼Ãº¡¢È¼ÉúÎïÖʲú¸ßÎÂÑÌÆøÊÍ·ÅÈÈÁ¿£¬¸ßÎÂÑÌÆøÏȽøÈë¯ÌÅ£¬ÔÙ½øÈëǰÑÌÏäµÄÓàÈȽÓÄÉ×°Ö㬽Ó׎øÈëÑÌ»ð¹Ü£¬×îºó½øÈëºóÑÌÏäÑ̵ÀÄÚµÄÓàÈȽÓÄÉ×°Ö㬸ßÎÂÑÌÆøÄð³ÉµÍÎÂÑÌÆø¾ÑÌ´ÑÅÅÈë´óÆø¡£¹¤ÒµÂ¯Ò¤ÓõÄÓàÈȹøÂ¯£¬Ò»°ãÀûÓÃÒý·ç»ú½«ÅÅÆøÅÅÍù´óÆø£»¶¯Á¦»úеºÍ»¯¹¤Éú²úÀú³ÌÓõÄÓàÈȹøÂ¯£¬ÔòÒÀ¿¿½øÆø×ÔÉíµÄѹÁ¦Ê¹Ö®Í¨¹ýÓàÈȹøÂ¯£¬²¢ÅÅÍù´óÆø»ò½øÈëÏÂÒ»µÀ¹¤ÒÕ×°Öá£
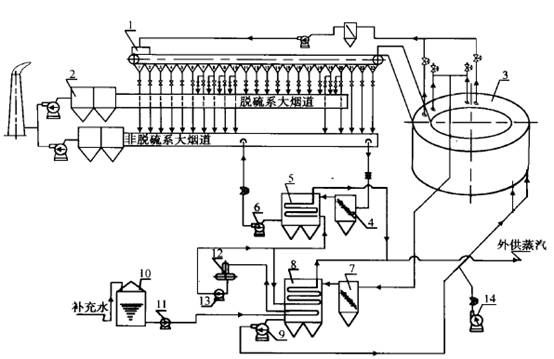
1¡ªÉÕ½á»ú; 2¡ªÖ÷µç³ý³¾Æ÷; 3¡ª»·Àä»ú; 4¡ªÖ÷Åųý³¾Æ÷; 5¡ªÖ÷ÅÅÓàÈȹøÂ¯;6¡ªÖ÷ÅÅÒý·ç»ú; 7¡ª»·Àä³ý³¾Æ÷;8¡ª»·ÀäÓàÈȹøÂ¯; 9¡ª»·ÀäÒý·ç»ú; 10¡ª´¢Ë®Ïä;11¡ªÔö²¹Ë®±Ã; 12¡ª³ýÑõÆ÷; 13¡ª¹øÂ¯¸øË®±Ã; 14¡ª±¸Ó÷ç»ú
360©O
+
50-60¶ÖµÄÓàÈȹøÂ¯
+
10Õ×Íߵķ¢µç»ú×é
ÔÚ¸ÖÌúÆóÒµµÄÍ⹺ÄÜÔ´±¾Ç®ÖУ¬ÃºÊÇ×îÖ÷ÒªµÄ£¬Æä´Î¾ÍÊǵçÁ¦¡£Ò»Ì¨360ƽ·½Ã×µÄÉÕ½á»úÅäÌ×50-60¶ÖµÄÓàÈȹøÂ¯¡¢10Õ×Íߵķ¢µç»ú×飬ÿÄê¿ÉÒÔʵÏÖÕý³£·¢µç7000Сʱ£¬½«¼«´ó¼õÉÙ¸ÖÆóµÄÍ⹺µç¹æÄ£¡£
ĿǰÓàÈÈ·¢µç½ÏºÃµÄ¸Ö³§£¬×Ô·¢µçÕ¼±ÈÒѾ¿ÉÒÔµÖ´ï70%£¬Ò»°ãµÄÒ²ÔÚ40%×óÓÒ¡£Í⹺µç¼õÉÙ£¬¸ÖÆóµÄÄÜÔ´±¾Ç®×ÔÈ»¾Í½µµÍÁË¡£ËäÈ»¸ÖÌúÒµµÍÃÔ£¬¿ÉÊÇȴûÓÐÓ°ÏìÆóÒµÔÚ½ÚÄÜÁìÓòµÄͶ×Ê¡£Ïà·´£¬ÕýÊÇÒòΪÀûÈó¿Õ¼äÓÐÏÞ£¬¸ÖÆó²Å»á»¨¸ü¶à¾«Á¦ÓÃÓÚ½ÚÄÜͶÈë¡¢½µµÍ±¾Ç®¡£
Èç½ñ£¬²»ÐàÇéÔµ¹ÙÍø²úÆ·ÏúÁ¿Á¬ÐøÔö³¤£¬Êг¡Õ¼ÓÐÂÊÎȲ½ÌáÉý£»ÎÞÂÛ¾ÀúÔõÑùµÄÊг¡¹¥»÷£¬È´Ê¼ÖÕ²»Î··çÓ꣬³¤ÇýÖ±ÈëÎÒ¹ú¸÷´óµØÇøÊг¡£¬×ݺᱼÅܼä»îÁ¦ÕÃÏÔ¡£








ÁÉÄþ»ô½õ
¹ã¶«Æì±õ
ÔÆÄÏË÷ͨ
°²»Õ½ðºÌ
ºÓ±±ÌïÔ
ɽ¶«ÌìÑô
ºÓÄÏÁúê»
ºÓÄÏ¿ª·â
ÎÒÃǵÄÊÂÇéÈËÔ±½«»áÔÚ24СʱÄÚÁªÏµÄú£¬ÇëÄú¼á³ÖÊÖ»úÁ÷ͨ¡£Èç¹ûÐèÒªÆäËüЧÀÍ£¬½Ó´ý²¦´òЧÀÍÈÈÏß400-839-1110